Caracteristici Casă cu etaj 95 mp utili, un dormitor, o baie
-
2nivele
-
95mp utili
-
3dorm.
-
1baie
Descriere Casă cu etaj 95 mp utili, un dormitor, o baie
Această casă are o suprafață utilă de 95 metri pătrați și o suprafață construită de 161 metri pătrați, dispusă pe două niveluri: parter și etaj. Cu un regim de înălțime P+1E, locuința include trei dormitoare confortabile și o singură baie. Zona de dining este integrată într-un spațiu deschis cu livingul, care ocupă 27 de metri pătrați, ideal pentru socializare și relaxare.
La parter, casa oferă un vestibul de 3,6 metri pătrați și un hol adiacent cu aceeași suprafață. Există un grup sanitar compact de 1,7 metri pătrați, iar bucătăria este completată de o cămară utilitară, totalizând 10,1 metri pătrați. Livingul împreună cu zona de dining formează un spațiu generos de 27,9 metri pătrați. Garajul împreunat cu camera tehnică adaugă încă 45 de metri pătrati la parter.
Etajul casei este bine organizat și include un hol spațios de 11 metri pātrați care face legatura între camere. Trei dormitoare sunt proiectate să ofere intimitate și confort; douǎ dintre ele mǎsurând câte 10 metri pǎtrati fiecare, iar al treilea fiind ceva mai mare cu o suprafaţǎ de 13,7 metri pǎtrati. Baia etajului are o dimensiune funcţionalǎ de 4 metri pǎtrati.
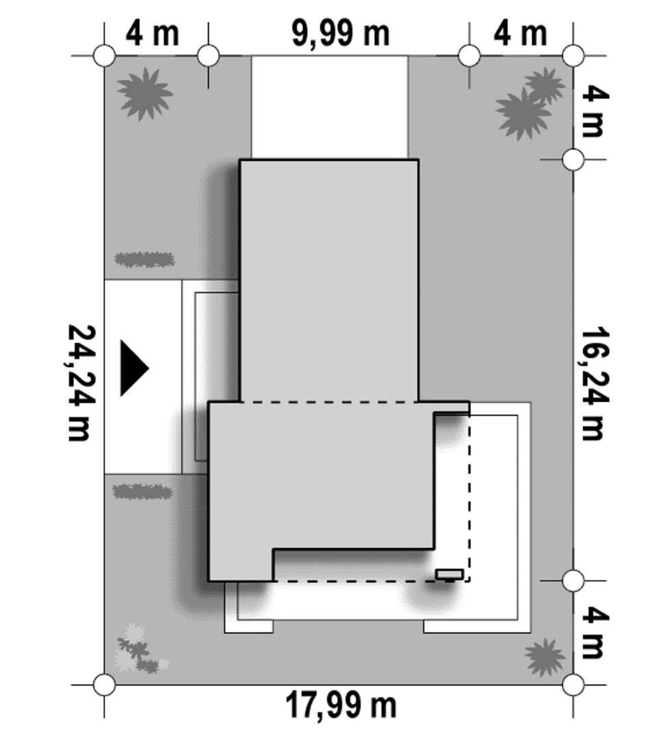
În plus, casa se mândrește cu o terasă impresionantă la etaj care acoperă nu mai puţin de 50,9 metri pǎtrati - perfect pentru relaxare în aer liber sau activitǎţi recreative. Pentru a construi această casă se recomandă un teren cu suprafata minimă necesară de 630mp şi dimensiuni minime ale terenului: lungimea - cel puţin 25m şi lǎţimea - cel puţin 18m.
În ceea ce privește aspectele exterioare ale casei, acoperişul nu a fost specificat în detaliu dar înaltimea totala a constructiei ajunge la aproximativ 7m. Aceastā configuraţie asigurā echilibrul între spaţiile private şi cele comune şi promite să fie potrivitā pentru familiile care cautā confort şi funcţionalitate în design-ul locuinţei lor.
Teren recomandat pentru Casă cu etaj 95 mp utili, un dormitor, o baie
Minim 630mp sau 25 metri lungime și 18 metri lățime.
Planimetrii Casă cu etaj 95 mp utili, un dormitor, o baie
Cost estimativ construcție Casă cu etaj 95 mp utili, un dormitor, o baie
Aflați costul estimativ al construcției în diferite scenarii. Pentru un calcul exact vă invităm să folosiți configuratorul de case:
Configurator caseConstrucție la roșu
de laConstrucție la gri
de laConstrucție la cheie
de laAlte modele similare
Casă cu mansardă 93 mp utili, un dormitor, o baie

Casă cu mansardă 104 mp utili, un dormitor, 2 băi

Casă cu mansardă 101 mp utili, 2 dormitoare, 2 băi

Casă cu mansardă 98 mp utili, un dormitor, 2 băi

Casă cu mansardă 95 mp utili, un dormitor, o baie

Casă cu mansardă 92 mp utili, un dormitor, 2 băi

Casă cu mansardă 101 mp utili, un dormitor, 2 băi

Casă cu mansardă 103 mp utili, un dormitor, o baie

Casă cu mansardă 88 mp utili, un dormitor, 2 băi

Casă cu mansardă 95 mp utili, un dormitor, o baie

Casă cu mansardă 97 mp utili, un dormitor, 2 băi

Casă cu mansardă 101 mp utili, un dormitor, o baie
